




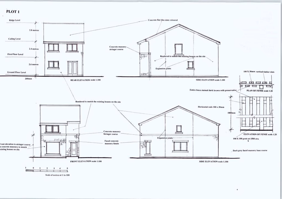
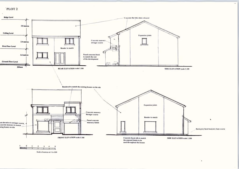
Development Land in Curling Pond Lane for Sale - £110,000
Two adjacent plots in Longridge, planning permission for 2 detached 3-bed homes was granted in March 2022. Ideal for building dream in picturesque village near open countryside. Services available.
Development Land in Curling Pond Lane for Sale - £110,000
Description
Two adjacent plots in Longridge, planning permission for 2 detached 3-bed homes was granted in March 2022. Ideal for building dream in picturesque village near open countryside. Services available.
Contact Agent
Smart Picks — Professionals Relevant to This Land
Based on this property's key features, here are the specialists you may want to consult as part of your due diligence: land agents, rural solicitors and planning consultants.

Land Agents
Essential for navigating the land market, finding buyers, and securing the best price.

Rural Solicitors
Significant investment (£110K+) requires legal expertise for conveyancing, title checks, and transaction security.

Planning Consultants
Planning-sensitive site needs expert guidance for applications and development strategy.
Location
Curling Pond Lane